首页  |  加入收藏  |  客服中心  |  会员留言
首页  |  市场概况  |  租赁信息  |  物业管理  |  最新动态  |  品牌荟萃  |  服装资讯  |  交通地图  |  联系我们

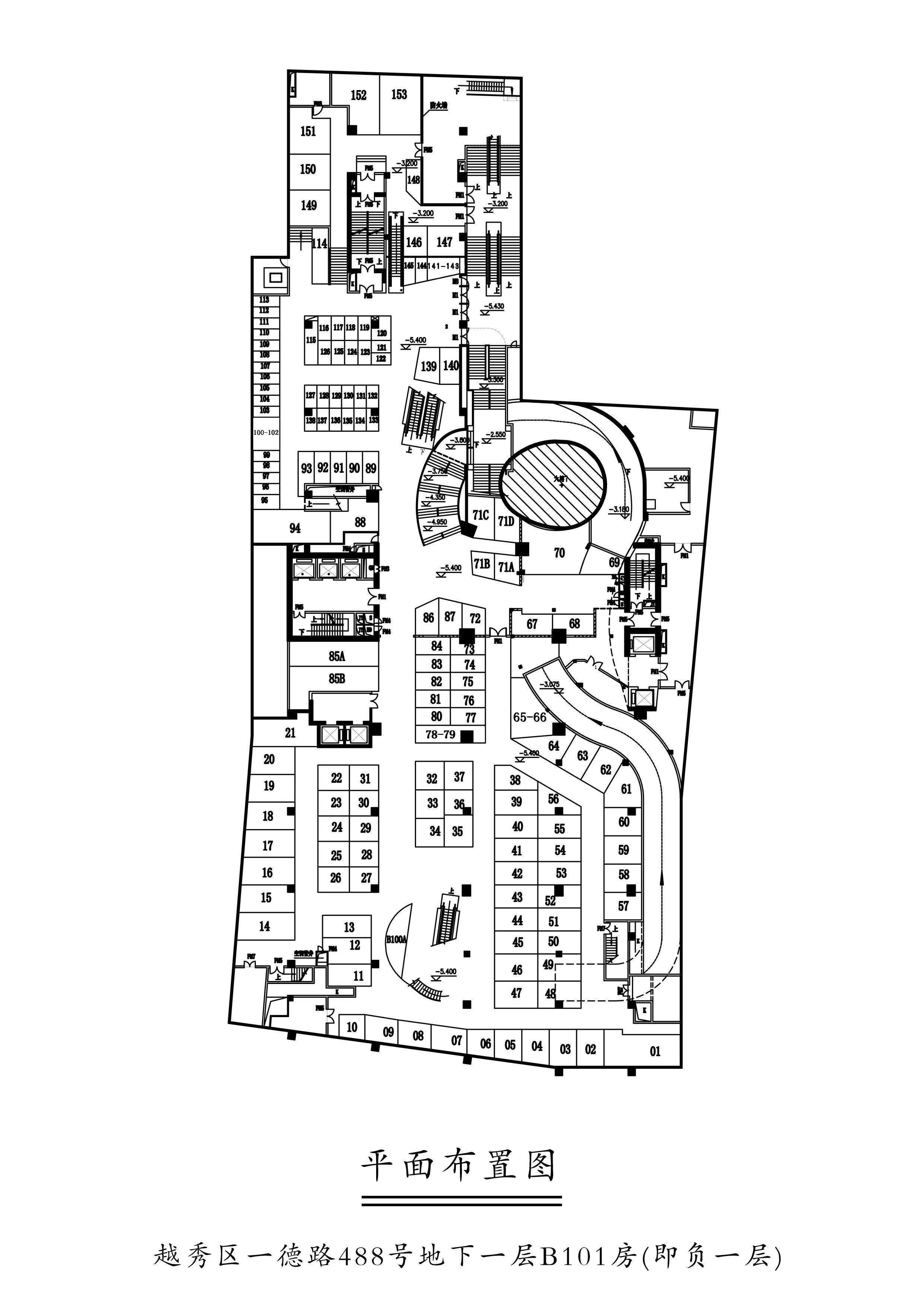
富一层店面平面图

上一条: 南楼三层店面平面图 下一条: 北楼首层店面平面图
版板声明  |  联系方式  |  在线留言  |  友情链接  |  网站地图  

咨询热线:020 - 81177228
地    址:广州市越秀区一德路488号 大同坊

粤ICP备11098689号-1

Copyright © 2009-2020 DATONGFANG, All rights reserved   网站管理

 
点击关闭客服